|
共栄コンクリート工業 株式会社 大阪府大阪市のコンクリート二次製品製造販売,プレキャストコンクリートの設計・製造・施工
電話番号: 06-6702-3349 |
|
|
| HOME |
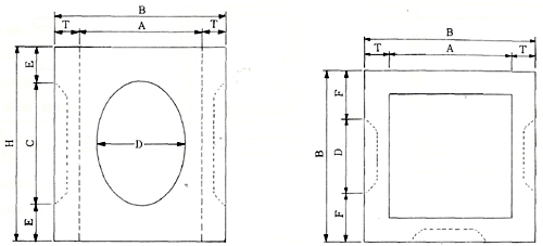
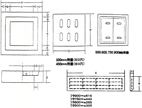
会社概要 | 製品紹介,製造,販売,プレキャストコンクリート設計,施工,コンクリート二次製品 | 桝 | 側溝 | 排水桝 | | 集水桝 | 車止め | フェンス | 見積から納品の流れ | 交通案内 | プライバシーポリシー | |
|
|
Copyright (C) 2010 kyoueiconcrete All Rights Reserved. |
|


















